Plan No.440332
Striking Country Dormers
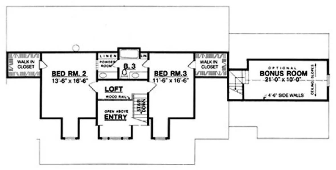
This home defines country charm, from the striking country dormers to the enclosed covered porch. Enter to find a large living room with fireplace and built in media center. A massive country kitchen with a raised bar, walk in pantry, and built in window seat with book shelf opens into a beautiful dining room with bay windows looking out onto a covered back porch. A secluded down stairs master suite opens onto a private porch and has a luxurious master bath with his and hers walk in closets and vanities. Upstairs you will find a loft that looks over the entry below and two additional bedrooms, each with it?s own walk in closet, that share a second bath. An optional bonus room is over the garage for additional space. Please note that finishing this room would add 250 sq. ft. to the total completed area.
Specifications
Total 2330 sq ft
- Main: 1605
- Second: 725
- Third: 0
- Loft/Bonus: 250
- Basement: 0
- Garage: 654
Rooms
- Beds: 3
- Baths: 2
- 1/2 Bath: 1
- 3/4 Bath: 0
Ceiling Height
- Main: 10'0
- Second: 8'0
- Third:
- Loft/Bonus: 8'0"
- Basement:
- Garage: 10'0
Details
- Exterior Walls: 2x4
- Garage Type: doubleGarage
- Width: 81'0
- Depth: 40'6
Roof
- Max Ridge Height: 27'8
- Comments: ()
- Primary Pitch: 10/12
- Secondary Pitch: 0/12

833–493–0942




