Plan No.446132
Atmosphere and Grace
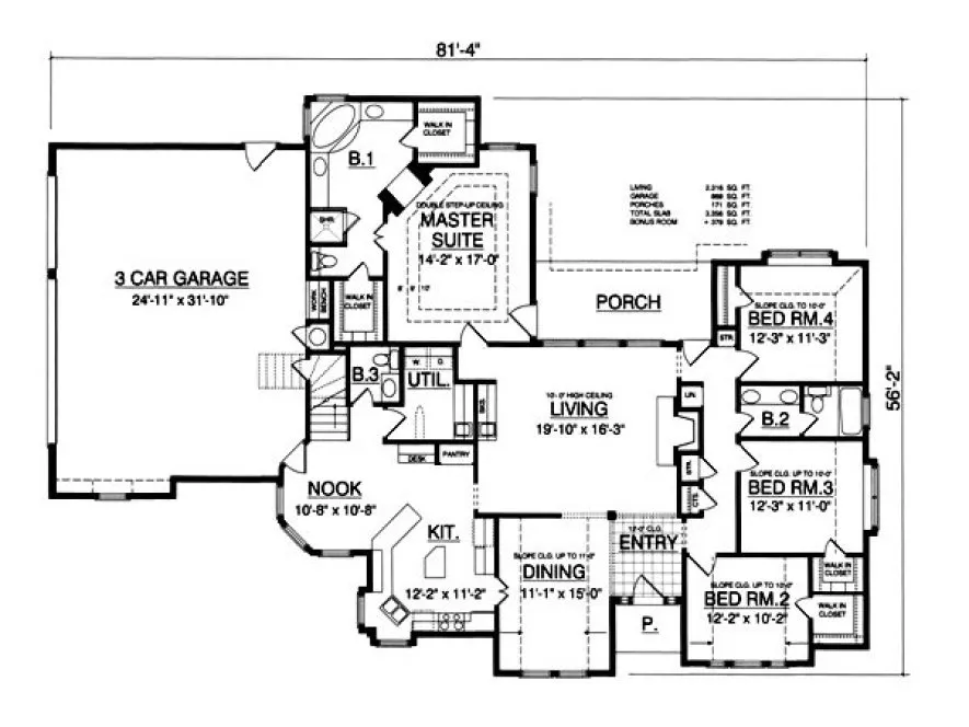
Large rooms and high ceilings give this French-style home an expansive feel, an abundance of windows add atmosphere and grace. The tiled entry boasts a 12 foot ceiling and an arched transom which enter into a massive living room with large windows, and a built-in book case and wet bar opposite a cozy fireplace. The elegant dining room has a ceiling that slopes gently to 11 feet. A large island kitchen opens into a cozy nook which receives plenty of natural light from three tall windows. The secluded master suite boasts a double stepped up ceiling and has a luxurious bath with his and her walk in closets. On the opposite side of the house three large bedrooms share a convenient hall bath. The large bonus room over the garage gives plenty of added space. Please note that, upon completion, the bonus room would add 334 sq. ft. to the total finished area.
Specifications
Total 2316 sq ft
- Main: 2316
- Second: 0
- Third: 0
- Loft/Bonus: 334
- Basement: 0
- Garage: 871
Rooms
- Beds: 4
- Baths: 2
- 1/2 Bath: 1
- 3/4 Bath: 0
Ceiling Height
- Main: 8'0
- Second:
- Third:
- Loft/Bonus: 8'0"
- Basement:
- Garage: 9'4
Details
- Exterior Walls: 2x4
- Garage Type: tripleGarage
- Width: 81'8
- Depth: 56'6
Roof
- Max Ridge Height: 24'0
- Comments: ()
- Primary Pitch: 10/12
- Secondary Pitch: 0/12

 833–493–0942
 833–493–0942





