Plan No.449802
Exquisite Country House
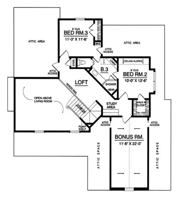
This is a unique and exquisite country house which offers a variety of materials including stone, brick, siding and copper. Inside you will find an elegant formal living room with a fireplace and bay windows. The spacious living room opens into a roomy dining space, kitchen and nook. The kitchen has an angular shape to it with a walk in pantry near by. The master suite has a luxurious bath with walk in his and her closets. Upstairs you will find two additional large bedrooms which share a convenient Jack and Jill bath. And the loft opens to the living room below. An optional bonus room is over the garage for additional space. Please note that upon completion the Bonus Room would add 270 sq. ft. to the total finished area.
Specifications
Total 2089 sq ft
- Main: 1441
- Second: 648
- Third: 0
- Loft/Bonus: 270
- Basement: 0
- Garage: 604
Rooms
- Beds: 3
- Baths: 2
- 1/2 Bath: 1
- 3/4 Bath: 0
Ceiling Height
- Main: 8'0
- Second: 8'0
- Third:
- Loft/Bonus: 8'0"
- Basement:
- Garage: 9'4
Details
- Exterior Walls: 2x4
- Garage Type: doubleGarage
- Width: 51'4
- Depth: 56'6
Roof
- Max Ridge Height: 24'7
- Comments: ()
- Primary Pitch: 10/12
- Secondary Pitch: 0/12
Add to Cart
Pricing
– westhomeplanners.com
– westhomeplanners.com
– westhomeplanners.com
– westhomeplanners.com
– westhomeplanners.com
– westhomeplanners.com
[Back to Search Results]

833–493–0942




