Plan No.453102
Specifications
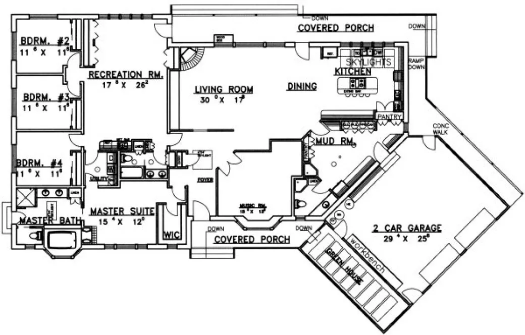
Total 3496 sq ft
- Main: 3496
- Second: 0
- Third: 0
- Loft/Bonus: 0
- Basement: 0
- Garage: 771
Rooms
- Beds: 4
- Baths: 3
- 1/2 Bath: 0
- 3/4 Bath: 0
Ceiling Height
- Main: 8'0
- Second:
- Third:
- Loft/Bonus:
- Basement:
- Garage:
Details
- Exterior Walls: ICF
- Garage Type: doubleGarage
- Width: 105'7
- Depth: 68'0
Roof
- Max Ridge Height: 23'6
- Comments: (Main Floor to Peak)
- Primary Pitch: 6/12
- Secondary Pitch: 0/12
Add to Cart
Pricing
Full Rendering – westhomeplanners.com
MAIN Plan – westhomeplanners.com
[Back to Search Results]

833–493–0942
