Plan No.459002
Specifications
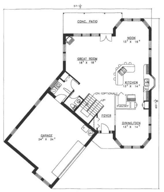
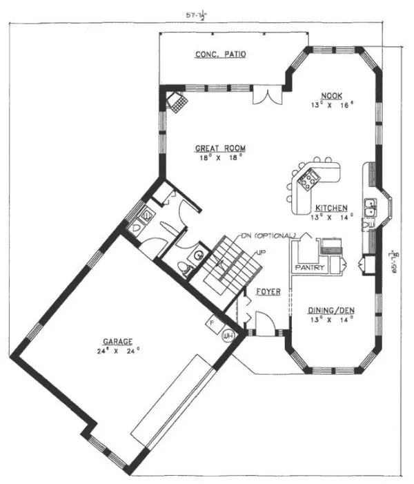
Total 2737 sq ft
- Main: 1456
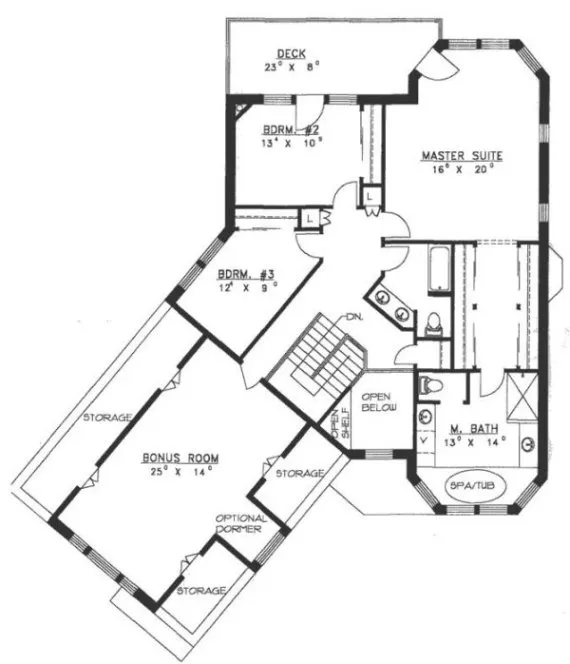
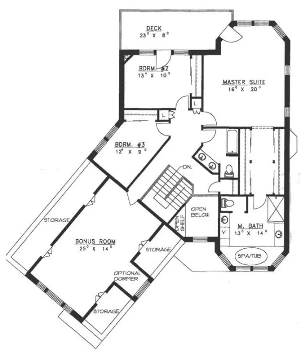
- Second: 1281
- Third: 0
- Loft/Bonus: 0
- Basement: 1456
- Garage: 665
Rooms
- Beds: 3
- Baths: 2
- 1/2 Bath: 1
- 3/4 Bath: 0
Ceiling Height
- Main: 9'0
- Second:
- Third:
- Loft/Bonus:
- Basement:
- Garage:
Details
- Exterior Walls: ICF
- Garage Type: doubleGarage
- Width: 59'2
- Depth: 65'8
Roof
- Max Ridge Height: 28'3
- Comments: ()
- Primary Pitch: 6/12
- Secondary Pitch: 0/12
Add to Cart
Pricing
– westhomeplanners.com
– westhomeplanners.com
– westhomeplanners.com
– westhomeplanners.com
[Back to Search Results]

833–493–0942


