Plan No.453002
Specifications
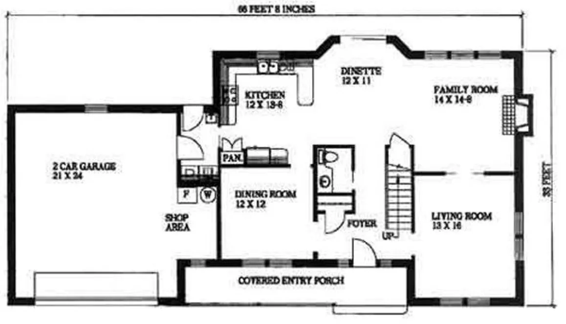
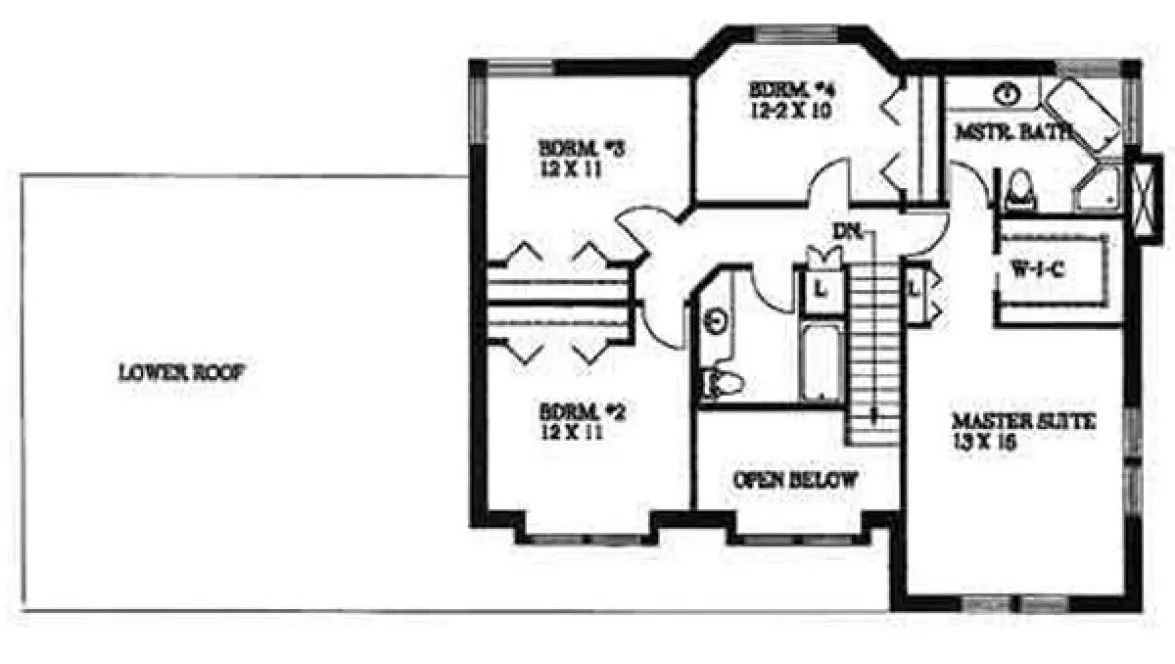
Total 2455 sq ft
- Main: 1267
- Second: 1188
- Third: 0
- Loft/Bonus: 0
- Basement: 0
- Garage: 631
Rooms
- Beds: 4
- Baths: 2
- 1/2 Bath: 1
- 3/4 Bath: 0
Ceiling Height
- Main: 8'0
- Second: 8'0
- Third:
- Loft/Bonus:
- Basement:
- Garage:
Details
- Exterior Walls: ICF
- Garage Type: doubleGarage
- Width: 71'0
- Depth: 35'0
Roof
- Max Ridge Height: 30'0
- Comments: ()
- Primary Pitch: 0/12
- Secondary Pitch: 0/12
Add to Cart
Pricing
– westhomeplanners.com
– westhomeplanners.com
– westhomeplanners.com
[Back to Search Results]

833–493–0942

