Plan No.454033
Specifications
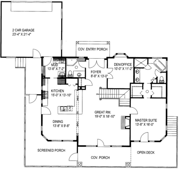
Total 3304 sq ft
- Main: 1655
- Second: 0
- Third: 0
- Loft/Bonus: 0
- Basement: 1652
- Garage: 524
Rooms
- Beds: 2
- Baths: 1
- 1/2 Bath: 0
- 3/4 Bath: 2
Ceiling Height
- Main: 9'0-20'2
- Second:
- Third:
- Loft/Bonus:
- Basement: 9'0
- Garage:
Details
- Exterior Walls: 2x6
- Garage Type: 2 Car Garage
- Width: 65'0
- Depth: 64'6
Roof
- Max Ridge Height: 31'8
- Comments: (Main Floor to Peak)
- Primary Pitch: 7/12
- Secondary Pitch: 11/12
Add to Cart
Pricing
– westhomeplanners.com
– westhomeplanners.com
– westhomeplanners.com
– westhomeplanners.com
– westhomeplanners.com
– westhomeplanners.com
FRONT Elevation – westhomeplanners.com
[Back to Search Results]

833–493–0942





