Plan No.458801
Specifications
Total 3200 sq ft
- Main: 1600
- Second: 1600
- Third: 0
- Loft/Bonus: 0
- Basement: 0
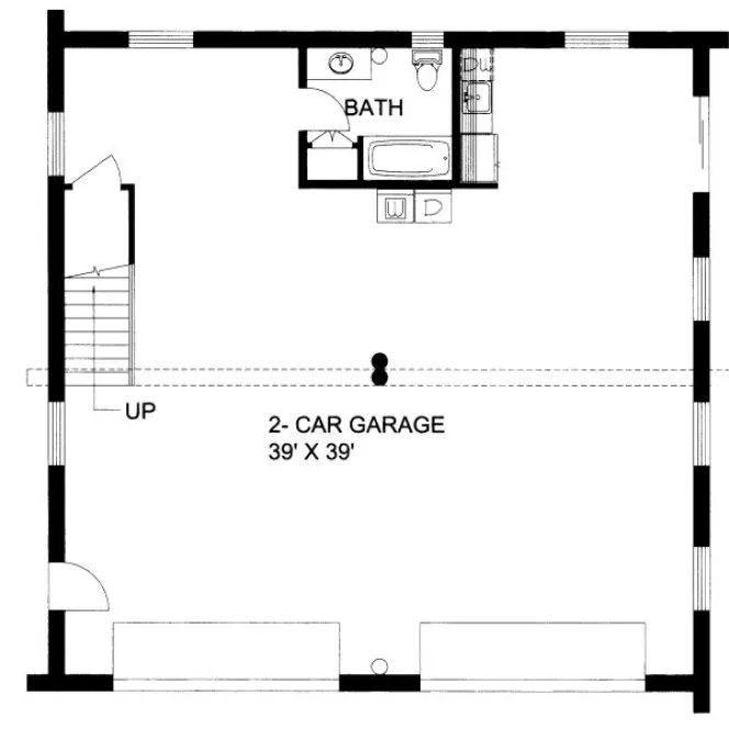
- Garage: 1600
Rooms
- Beds: 0
- Baths: 1
- 1/2 Bath: 1
- 3/4 Bath: 0
Ceiling Height
- Main:
- Second:
- Third:
- Loft/Bonus:
- Basement:
- Garage: 9'2
Details
- Exterior Walls: Log
- Garage Type: doubleGarage
- Width: 40'0
- Depth: 40'0
Roof
- Max Ridge Height: 30'5
- Comments: ()
- Primary Pitch: 6/12
- Secondary Pitch: 0/12
Add to Cart
Pricing
– westhomeplanners.com
– westhomeplanners.com
– westhomeplanners.com
– westhomeplanners.com
[Back to Search Results]

833–493–0942


