Plan No.453701
Specifications
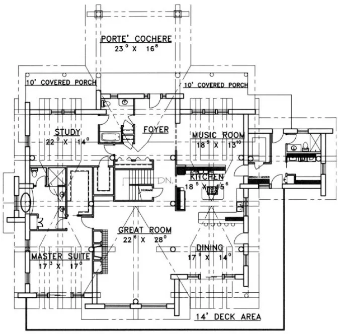
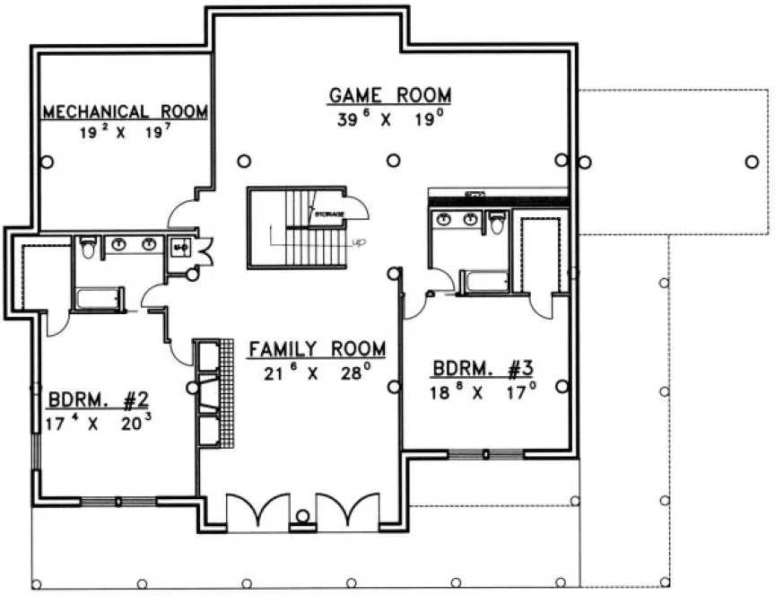
Total 6824 sq ft
- Main: 3412
- Second: 0
- Third: 0
- Loft/Bonus: 0
- Basement: 3412
- Garage: 0
Rooms
- Beds: 3
- Baths: 5
- 1/2 Bath: 0
- 3/4 Bath: 0
Ceiling Height
- Main: 9'0
- Second:
- Third:
- Loft/Bonus:
- Basement: 9'0
- Garage:
Details
- Exterior Walls: Log
- Garage Type: doubleCarport
- Width: 89'6
- Depth: 61'1
Roof
- Max Ridge Height: 21'5
- Comments: (Main Floor to Peak)
- Primary Pitch: 10/12
- Secondary Pitch: 0/12
Add to Cart
Pricing
– westhomeplanners.com
– westhomeplanners.com
– westhomeplanners.com
[Back to Search Results]

833–493–0942

