Plan No.456601
Specifications
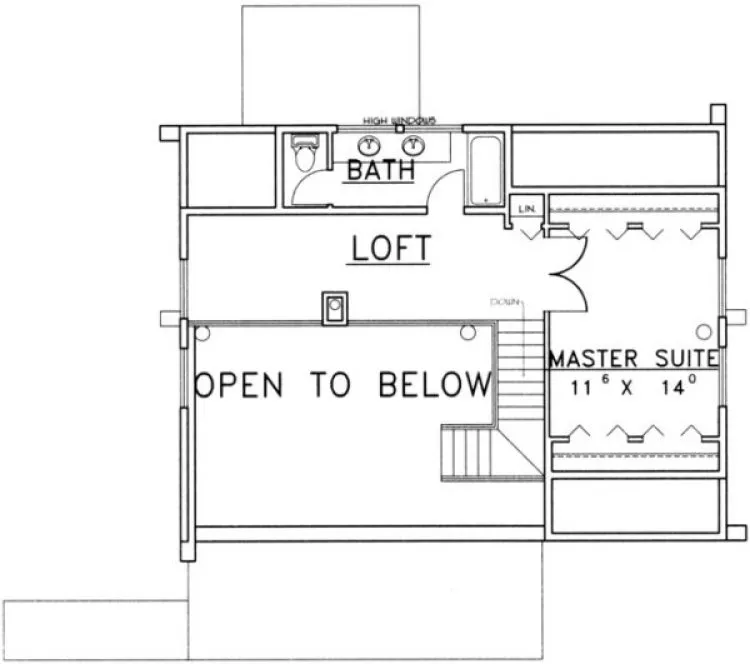
Total 1485 sq ft
- Main: 972
- Second: 513
- Third: 0
- Loft/Bonus: 0
- Basement: 1014
- Garage: 0
Rooms
- Beds: 2
- Baths: 2
- 1/2 Bath: 0
- 3/4 Bath: 0
Ceiling Height
- Main: 9'1
- Second:
- Third:
- Loft/Bonus:
- Basement:
- Garage:
Details
- Exterior Walls: Log
- Garage Type: doubleGarage
- Width: 27'0
- Depth: 30'8
Roof
- Max Ridge Height: 34'0
- Comments: ()
- Primary Pitch: 12/12
- Secondary Pitch: 0/12
Add to Cart
Pricing
– westhomeplanners.com
– westhomeplanners.com
– westhomeplanners.com
– westhomeplanners.com
– westhomeplanners.com
[Back to Search Results]

833–493–0942



