Plan No.417379
Country Feel
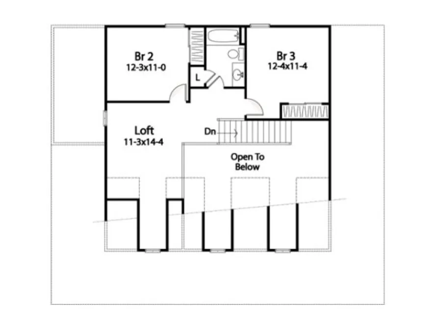
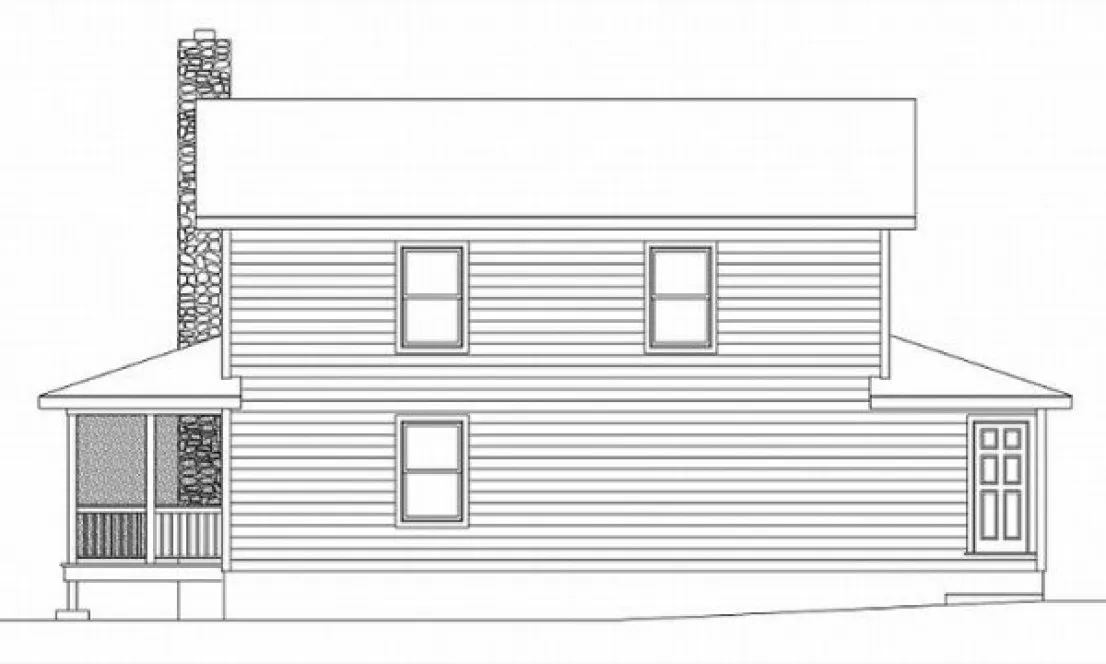
Dormers and a large wrap-around porch extend a country feel to all who enter this two-story vacation home. A screened porch provides a peaceful space for relaxation. The efficient kitchen enjoys a pass-through window The two-story great room provides an open, airy feel. An upstairs loft provides an excellent playroom for children or an ideal home office. Bedrooms #2 and #3 share a full bath and overlook the great room with this house plan.
Specifications
Total 1879 sq ft
- Main: 1314
- Second: 565
- Third: 0
- Loft/Bonus: 0
- Basement: 0
- Garage: 0
Rooms
- Beds: 3
- Baths: 2
- 1/2 Bath: 0
- 3/4 Bath: 0
Ceiling Height
- Main: 8'0
- Second: 8'0
- Third:
- Loft/Bonus:
- Basement:
- Garage:
Details
- Exterior Walls: 2x4
- Garage Type:
- Width: 50'0
- Depth: 42'0
Roof
- Max Ridge Height: 28'0
- Comments: ()
- Primary Pitch: 10/12
- Secondary Pitch: 4/12
Add to Cart
Pricing
– westhomeplanners.com
– westhomeplanners.com
– westhomeplanners.com
– westhomeplanners.com
– westhomeplanners.com
– westhomeplanners.com
[Back to Search Results]

833–493–0942




