Plan No.349623
Midsize Country-Style
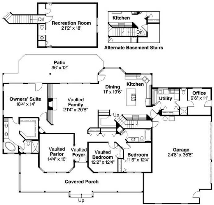
A wide wrap-around porch gives an open, welcoming look to this midsize country-style home. It�s all on one level, with the exception of a large recreation room over the garage. The vaulted family room is bright, spacious, and open to the dining area and kitchen. A vaulted parlor is to the left of the foyer.
Specifications
Total 3141 sq ft
- Main: 2657
- Second: 484
- Third: 0
- Loft/Bonus: 0
- Basement: 0
- Garage: 947
Rooms
- Beds: 3
- Baths: 2
- 1/2 Bath: 2
- 3/4 Bath: 0
Ceiling Height
- Main: 9'0
- Second:
- Third:
- Loft/Bonus:
- Basement:
- Garage:
Details
- Exterior Walls: 2x6
- Garage Type: tripleGarage
- Width: 88'0
- Depth: 57'6
Roof
- Max Ridge Height: 25'0
- Comments: ()
- Primary Pitch: 8/12
- Secondary Pitch: 0/12
Add to Cart
Pricing
– westhomeplanners.com
– westhomeplanners.com
– westhomeplanners.com
[Back to Search Results]

833–493–0942

