Plan No.346323
Spacious and Sunny
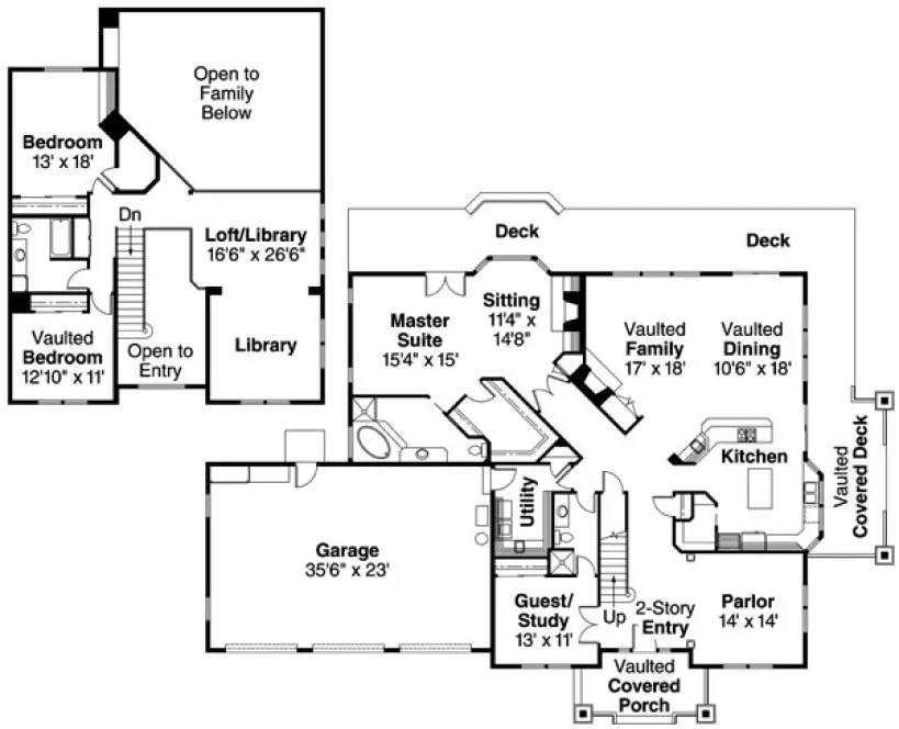
Sidelights, high arched window create naturally illuminated two-story entry. Spacious and sunny two-story family room has rustic stone fireplace. Luxurious master suite boasts bayed sitting area, huge walk-in closet, and spa tub
Specifications
Total 3568 sq ft
- Main: 2455
- Second: 1113
- Third: 0
- Loft/Bonus: 0
- Basement: 0
- Garage: 855
Rooms
- Beds: 4
- Baths: 3
- 1/2 Bath: 0
- 3/4 Bath: 0
Ceiling Height
- Main: 9'0
- Second:
- Third:
- Loft/Bonus:
- Basement:
- Garage:
Details
- Exterior Walls: 2x6
- Garage Type: doubleGarage
- Width: 86'0
- Depth: 58'0
Roof
- Max Ridge Height: 29'0
- Comments: ()
- Primary Pitch: 8/12
- Secondary Pitch: 0/12
Add to Cart
Pricing
– westhomeplanners.com
Main & Second Floor – westhomeplanners.com
– westhomeplanners.com
[Back to Search Results]

833–493–0942

