Plan No.347913
Warm Welcome
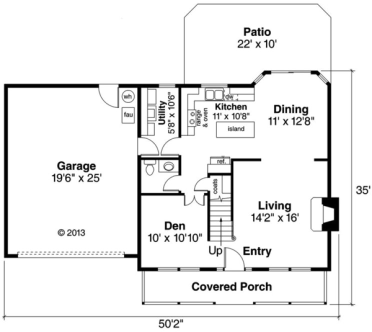
Shutters, multipaned windows, full front porch creates warm welcome. Living room with fireplace flows into dining room open to kitchen. Front-facing den, open to entry, could be used as home office
Specifications
Total 1604 sq ft
- Main: 838
- Second: 766
- Third: 0
- Loft/Bonus: 0
- Basement: 0
- Garage: 520
Rooms
- Beds: 3
- Baths: 2
- 1/2 Bath: 1
- 3/4 Bath: 0
Ceiling Height
- Main: 9'0
- Second: 8'0
- Third:
- Loft/Bonus:
- Basement:
- Garage:
Details
- Exterior Walls: 2x6
- Garage Type: doubleGarage
- Width: 50'2
- Depth: 35'0
Roof
- Max Ridge Height: 26'6
- Comments: (Main Floor to Peak)
- Primary Pitch: 6/12
- Secondary Pitch: 0/12
Add to Cart
Pricing
– westhomeplanners.com
– westhomeplanners.com
– westhomeplanners.com
Artist's Sketch – westhomeplanners.com
Opt. Basement Stairs – westhomeplanners.com
– westhomeplanners.com
– westhomeplanners.com
– westhomeplanners.com
[Back to Search Results]

833–493–0942






