Plan No.347813
French doors
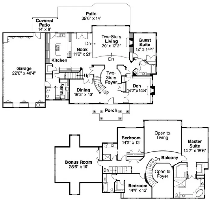
Balcony bridge overlooks dramatic two-story great room and foyer. Pass-through counter connects kitchen to nook with French doors. Three bedrooms, bonus room above, guest suite and den below
Specifications
Total 4022 sq ft
- Main: 2410
- Second: 1612
- Third: 0
- Loft/Bonus: 0
- Basement: 0
- Garage: 945
Rooms
- Beds: 4
- Baths: 4
- 1/2 Bath: 1
- 3/4 Bath: 0
Ceiling Height
- Main: 9'0
- Second:
- Third:
- Loft/Bonus:
- Basement:
- Garage:
Details
- Exterior Walls: 2x6
- Garage Type: tripleGarage
- Width: 84'0
- Depth: 55'2
Roof
- Max Ridge Height: 32'8
- Comments: ()
- Primary Pitch: 8/12
- Secondary Pitch: 0/12
Add to Cart
Pricing
– westhomeplanners.com
First&Second Floor – westhomeplanners.com
– westhomeplanners.com
[Back to Search Results]

833–493–0942

