Plan No.349613
Corner Quoins
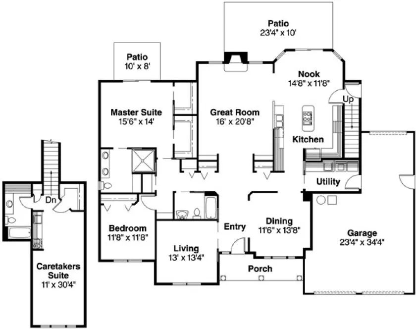
Columns, corner quoins curved keystone arches accent front facade. Private, fully equipped caretaker's suite or in-law suite with private entrance. Storage spaces are in ample supply throughout the house
Specifications
Total 2712 sq ft
- Main: 2268
- Second: 444
- Third: 0
- Loft/Bonus: 0
- Basement: 0
- Garage: 648
Rooms
- Beds: 3
- Baths: 3
- 1/2 Bath: 0
- 3/4 Bath: 0
Ceiling Height
- Main: 8'0
- Second:
- Third:
- Loft/Bonus:
- Basement:
- Garage:
Details
- Exterior Walls: 2x6
- Garage Type: tripleGarage
- Width: 68'0
- Depth: 52'8
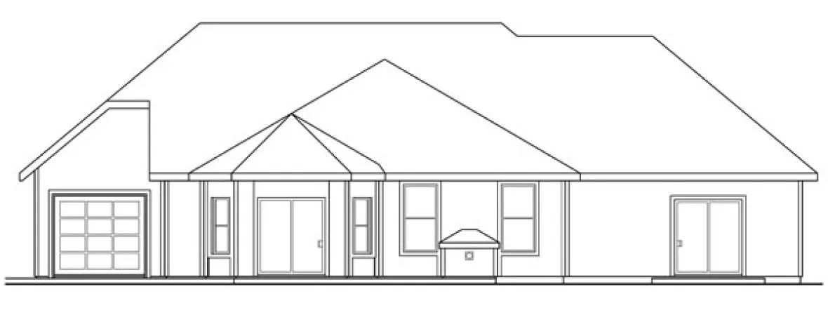
Roof
- Max Ridge Height: 23'4
- Comments: ()
- Primary Pitch: 10/12
- Secondary Pitch: 0/12
Add to Cart
Pricing
– westhomeplanners.com
First&Second Floor – westhomeplanners.com
– westhomeplanners.com
[Back to Search Results]

833–493–0942

