Plan No.347613
Midsize Family Home
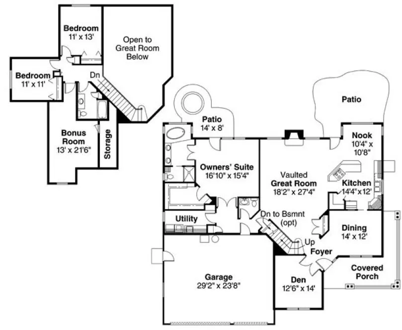
Master suite boasts spa tub inside, spa tub on private patio outside. Nostalgic covered porch wraps around front and side of this midsize family home. Dancing flames in the fireplace can be enjoyed from great room and kitchen. Please note that the bonus room area is not included in the total square footage.
Specifications
Total 2492 sq ft
- Main: 1997
- Second: 495
- Third: 0
- Loft/Bonus: 269
- Basement: 0
- Garage: 708
Rooms
- Beds: 3
- Baths: 2
- 1/2 Bath: 1
- 3/4 Bath: 0
Ceiling Height
- Main: 9'0
- Second:
- Third:
- Loft/Bonus:
- Basement:
- Garage:
Details
- Exterior Walls: 2x6
- Garage Type: tripleGarage
- Width: 63'0
- Depth: 54'0
Roof
- Max Ridge Height: 25'4
- Comments: ()
- Primary Pitch: 8/12
- Secondary Pitch: 0/12
Add to Cart
Pricing
Full Rendering – westhomeplanners.com
– westhomeplanners.com
REAR Elevation – westhomeplanners.com
[Back to Search Results]

833–493–0942

