Plan No.342213
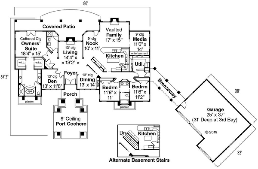
MAIN CEILING HEIGHT IS 9 FT VAULTED AREAS ARE 14 FT VAULTED IN THE LIVING ROOM, DINING ROOM, DEN, NOOK, REAR COVERED PATIO AND FRONT ENTRY
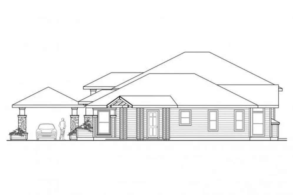
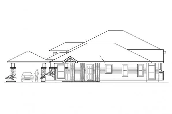
Its modern porte-cochere sets an elegant stage for this large, single-level, contemporary home. A den is to the left of the foyer, dining room to the right, while columns directly ahead define and dramatize a living room with a fireplace. Bay windows wrap around a nook, open to the kitchen and vaulted family room.
Specifications
Total 3065 sq ft
- Main: 3065
- Second: 0
- Third: 0
- Loft/Bonus: 0
- Basement: 0
- Garage: 1072
Rooms
- Beds: 3
- Baths: 3
- 1/2 Bath: 0
- 3/4 Bath: 0
Ceiling Height
- Main: 23'10
- Second:
- Third:
- Loft/Bonus:
- Basement:
- Garage:
Details
- Exterior Walls: 2x6
- Garage Type: 3 Car Garage
- Width: 80'0
- Depth: 68'11
Roof
- Max Ridge Height: 23'10
- Comments: (Main Floor to Peak)
- Primary Pitch: 6/12
- Secondary Pitch: 0/12
Add to Cart
Pricing
– westhomeplanners.com
– westhomeplanners.com
Rear Rendering – westhomeplanners.com
– westhomeplanners.com
– westhomeplanners.com
– westhomeplanners.com
[Back to Search Results]

833–493–0942




