Plan No.345503
Nostalgic Country Charmer
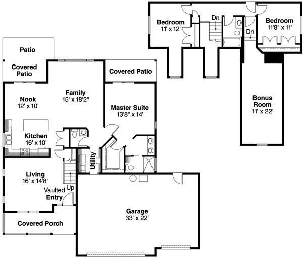
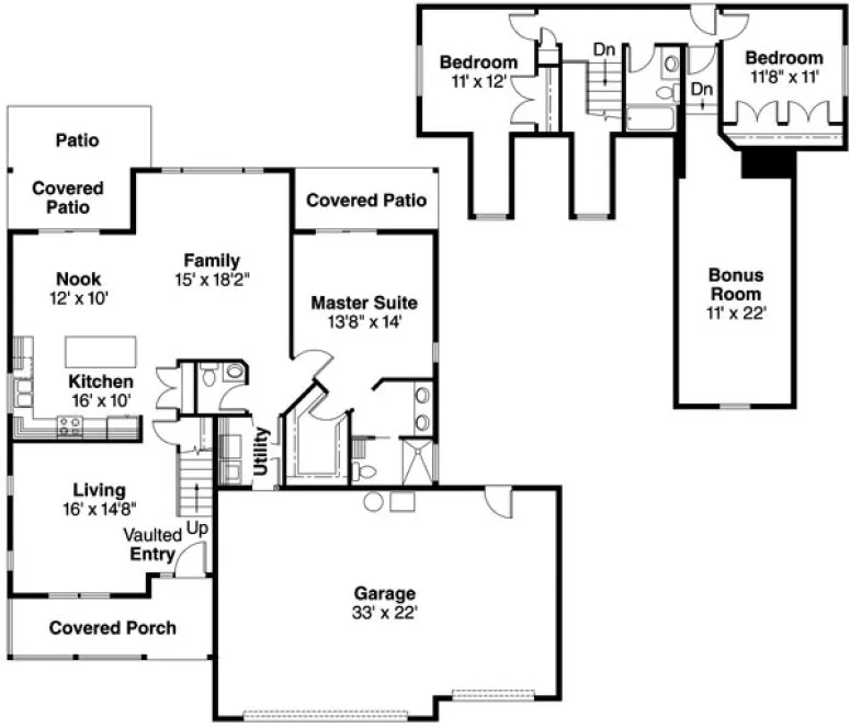
Nostalgic country charmer has gabled dormers, covered porch and three-car garage. Kitchen and nook open to large family room with sliding door access to patio/deck. Master suite has double vanity, large walk-in closet and direct patio access
Specifications
Total 1887 sq ft
- Main: 1369
- Second: 518
- Third: 0
- Loft/Bonus: 0
- Basement: 0
- Garage: 743
Rooms
- Beds: 3
- Baths: 2
- 1/2 Bath: 1
- 3/4 Bath: 0
Ceiling Height
- Main: 9'0
- Second:
- Third:
- Loft/Bonus:
- Basement:
- Garage:
Details
- Exterior Walls: 2x6
- Garage Type: doubleGarage
- Width: 54'0
- Depth: 54'0
Roof
- Max Ridge Height: 23'0
- Comments: ()
- Primary Pitch: 7/12
- Secondary Pitch: 0/12
Add to Cart
Pricing
Full Rendering – westhomeplanners.com
– westhomeplanners.com
REAR Elevation – westhomeplanners.com
[Back to Search Results]

833–493–0942

