Plan No.280005
Huge Island Kitchen
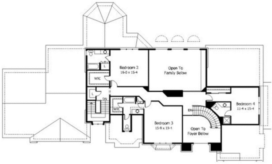
A huge island kitchen boasts a sunny nook with access to a bayed four-season porch. Both the formal dining room and family room feature handsome fireplace. The master suite includes a garden whirlpool and two walk-in closets. Upstairs, three other bedrooms each include private baths, and two offer walk-in closets.
Specifications
Total 5090 sq ft
- Main: 3450
- Second: 1640
- Third: 0
- Loft/Bonus: 0
- Basement: 3450
- Garage: 0
Rooms
- Beds: 4
- Baths: 3
- 1/2 Bath: 2
- 3/4 Bath: 1
Ceiling Height
- Main: 9'0
- Second: 8'0
- Third:
- Loft/Bonus:
- Basement: 8'0
- Garage:
Details
- Exterior Walls: 2x6
- Garage Type: tripleGarage
- Width: 110'0
- Depth: 65'0
Roof
- Max Ridge Height:
- Comments: (Main Floor to Peak)
- Primary Pitch: 10/12
- Secondary Pitch: 0/12
Add to Cart
Pricing
– westhomeplanners.com
– westhomeplanners.com
– westhomeplanners.com
Artist's Sketch – westhomeplanners.com
– westhomeplanners.com
[Back to Search Results]

833–493–0942



