Plan No.343000
Elegantly Appointed
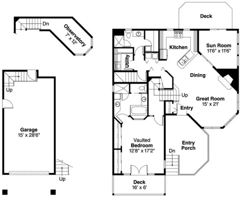
A small bright home with an elegantly appointed vaulted bedroom. A multilevel plan with sun room, sauna, and bayed great room. It features two large outdoor living areas plus a wide railed balcony.
Specifications
Total 1434 sq ft
- Main: 1318
- Second: 0
- Third: 0
- Loft/Bonus: 116
- Basement: 0
- Garage: 455
Rooms
- Beds: 1
- Baths: 2
- 1/2 Bath: 0
- 3/4 Bath: 0
Ceiling Height
- Main: 9'0
- Second:
- Third:
- Loft/Bonus:
- Basement:
- Garage:
Details
- Exterior Walls: 2x6
- Garage Type: singleGarage
- Width: 38'0
- Depth: 50'0
Roof
- Max Ridge Height: 22'4
- Comments: (Main Floor to Peak)
- Primary Pitch: 9/12
- Secondary Pitch: 0/12
Add to Cart
Pricing
– westhomeplanners.com
First & Second Floors – westhomeplanners.com
– westhomeplanners.com
[Back to Search Results]

833–493–0942

