Plan No.342502
Garage with Apartment
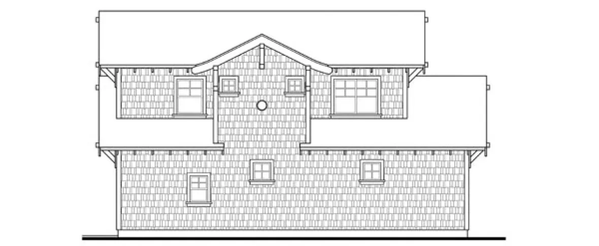
This bungalow style garage plan can house up to 5 cars. The larger two car door is 16' wide and 8' tall, while the smaller door is 9' wide and 8' tall. This garage plan also has a guest apartment on the second floor. The guest apartment features a walk-in closet with full bathroom in the bedroom. As well as a fireplace in the great room that can be enjoyed from the kitchen and nook. There is also a utility room that is accessed through the kitchen. *Materials list available. Call 1-800-361-7526 for more information.
Specifications
Total 1999 sq ft
- Main: 1200
- Second: 799
- Third: 0
- Loft/Bonus: 0
- Basement: 0
- Garage: 0
Rooms
- Beds: 1
- Baths: 2
- 1/2 Bath: 0
- 3/4 Bath: 0
Ceiling Height
- Main: 9'0
- Second:
- Third:
- Loft/Bonus:
- Basement:
- Garage:
Details
- Exterior Walls: 2x6
- Garage Type: fourGarage
- Width: 40'0
- Depth: 46'0
Roof
- Max Ridge Height: 26'0
- Comments: (Main Floor to Peak)
- Primary Pitch: 6/12
- Secondary Pitch: 0/12
Add to Cart
Pricing
– westhomeplanners.com
First & Second Floor – westhomeplanners.com
– westhomeplanners.com
– westhomeplanners.com
– westhomeplanners.com
[Back to Search Results]

833–493–0942



