Plan No.346312
Angled Eating Bar
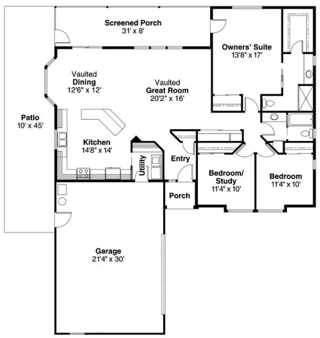
Raised brick accents the lofty arched porch that leads into a high-ceilinged entry. The rear wall of the vaulted great room is richly glassed, while a large window bay brightens the dining room. An angled eating bar separates the dining room from a kitchen where counters and cabinets span two long walls.
Specifications
Total 1720 sq ft
- Main: 1720
- Second: 0
- Third: 0
- Loft/Bonus: 0
- Basement: 668
- Garage: 668
Rooms
- Beds: 3
- Baths: 2
- 1/2 Bath: 0
- 3/4 Bath: 0
Ceiling Height
- Main: 8'0
- Second:
- Third:
- Loft/Bonus:
- Basement:
- Garage:
Details
- Exterior Walls: 2x6
- Garage Type: doubleGarage
- Width: 54'0
- Depth: 65'0
Roof
- Max Ridge Height: 18'0
- Comments: ()
- Primary Pitch: 6/12
- Secondary Pitch: 0/12
Add to Cart
Pricing
– westhomeplanners.com
– westhomeplanners.com
– westhomeplanners.com
[Back to Search Results]

833–493–0942

