Plan No.348211
Brick Veneer
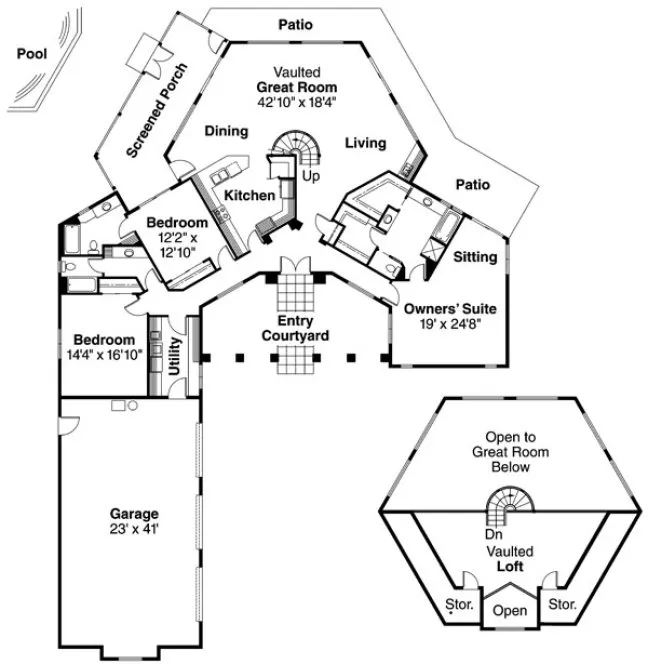
Brick veneer arches and columns give a neoclassical look to this home. A vaulted hexagonal great room forms the core. Pie-shaped wedges angle up to a high central peak, while the windows that fill most of three rear walls offer a panoramic view. Sliding doors in the dining area open onto a roomy screened porch.
Specifications
Total 3026 sq ft
- Main: 2683
- Second: 343
- Third: 0
- Loft/Bonus: 0
- Basement: 0
- Garage: 1016
Rooms
- Beds: 3
- Baths: 3
- 1/2 Bath: 0
- 3/4 Bath: 0
Ceiling Height
- Main: 8'0
- Second:
- Third:
- Loft/Bonus:
- Basement:
- Garage:
Details
- Exterior Walls: 2x6
- Garage Type: tripleGarage
- Width: 75'1
- Depth: 108'1
Roof
- Max Ridge Height: 23'0
- Comments: ()
- Primary Pitch: 6/12
- Secondary Pitch: 0/12
Add to Cart
Pricing
– westhomeplanners.com
– westhomeplanners.com
– westhomeplanners.com
[Back to Search Results]

833–493–0942

