Plan No.348111
Ground floor Colonnade
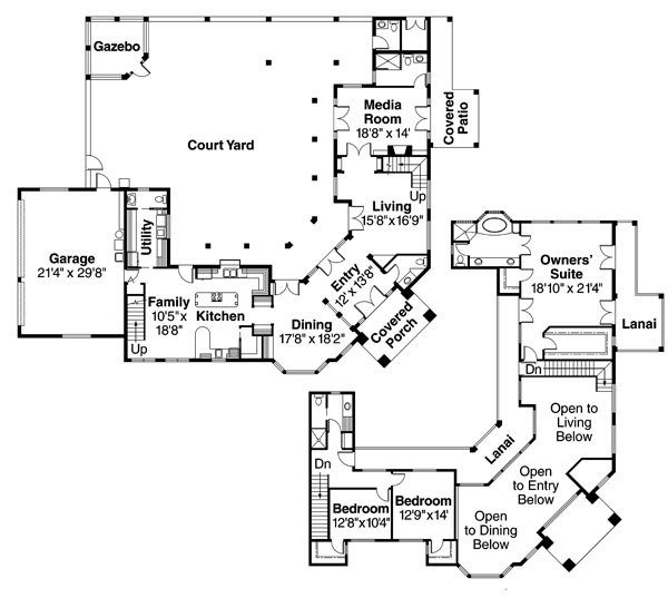
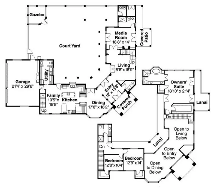
Girded, gently arched windows evoke the Southwest or Mediterranean regions. Lofty portico leads into naturally bright two-story foyer, entry and living room. Ground floor colonnade and upper lanai join rooms, rim courtyard on two sides
Specifications
Total 3509 sq ft
- Main: 2106
 - Second: 1403
 - Third: 0
 - Loft/Bonus: 0
 - Basement: 0
 - Garage: 682
 
Rooms
- Beds: 3
 - Baths: 3
 - 1/2 Bath: 3
 - 3/4 Bath: 0
 
Ceiling Height
- Main: 10'0
 - Second:
 - Third:
 - Loft/Bonus:
 - Basement:
 - Garage:
 
Details
- Exterior Walls: Block
 - Garage Type: tripleGarage
 - Width: 95'5
 - Depth: 75'11
 
Roof
- Max Ridge Height: 27'0
 - Comments: ()
 - Primary Pitch: 5/12
 - Secondary Pitch: 0/12
 
		Add to Cart
		Pricing
			
		
	
		
	
	
	Full Rendering – westhomeplanners.com
	
	
	
	
	First&Second Floor – westhomeplanners.com
	
	
	
	
	REAR Elevation – westhomeplanners.com
	
	
		
		
	[Back to Search Results]

 833–493–0942

