Plan No.346701
Double Door Entry
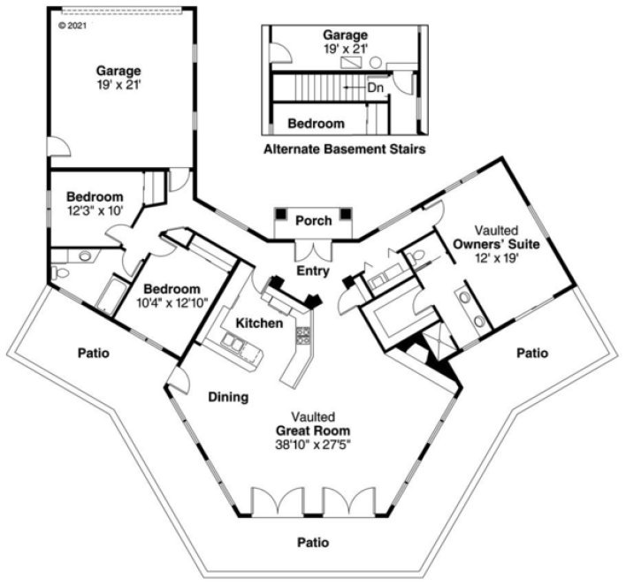
Bedroom wings fan out on both sides of the vaulted, richly windowed, hexagonal great room that forms the core. Its full-featured kitchen, just a few steps in from the double-door entry, has a long eating bar and is partially open to the great room. Gracefully arched clerestory windows crown most of the multipaned windows.
Specifications
Total 1975 sq ft
- Main: 1975
- Second: 0
- Third: 0
- Loft/Bonus: 0
- Basement: 0
- Garage: 430
Rooms
- Beds: 3
- Baths: 2
- 1/2 Bath: 0
- 3/4 Bath: 0
Ceiling Height
- Main: 8'0
- Second:
- Third:
- Loft/Bonus:
- Basement:
- Garage:
Details
- Exterior Walls: 2x6
- Garage Type: doubleGarage
- Width: 70'10
- Depth: 68'2
Roof
- Max Ridge Height: 22'4
- Comments: (Main Floor to Peak)
- Primary Pitch: 6/12
- Secondary Pitch: 0/12
Add to Cart
Pricing
Full Rendering – westhomeplanners.com
MAIN Plan – westhomeplanners.com
LEFT Elevation – westhomeplanners.com
RIGHT Elevation – westhomeplanners.com
FRONT Elevation – westhomeplanners.com
[Back to Search Results]

833–493–0942



