Plan No.411352
Spacious Look and Feel
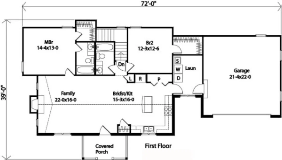
This single story offers the conveniences of daily living. Vaulted ceilings and an open floor plan provide a spacious look and feel in the living areas. Pass by the pantry from the garage to unload groceries with ease. A convenient coat closet is located near the front door. Both bedrooms feature walk-in closets.
Specifications
Total 1217 sq ft
- Main: 1217
- Second: 0
- Third: 0
- Loft/Bonus: 0
- Basement: 1217
- Garage: 498
Rooms
- Beds: 2
- Baths: 2
- 1/2 Bath: 0
- 3/4 Bath: 0
Ceiling Height
- Main: 8'0
- Second:
- Third:
- Loft/Bonus:
- Basement: 8'0
- Garage: 9'4
Details
- Exterior Walls: 2x4
- Garage Type: doubleGarage
- Width: 72'0
- Depth: 39'0
Roof
- Max Ridge Height: 20'4
- Comments: ()
- Primary Pitch: 8/12
- Secondary Pitch: 4/12
Add to Cart
Pricing
– westhomeplanners.com
– westhomeplanners.com
– westhomeplanners.com
– westhomeplanners.com
– westhomeplanners.com
[Back to Search Results]

833–493–0942



