Plan No.345011
Long Patio Wrap Around
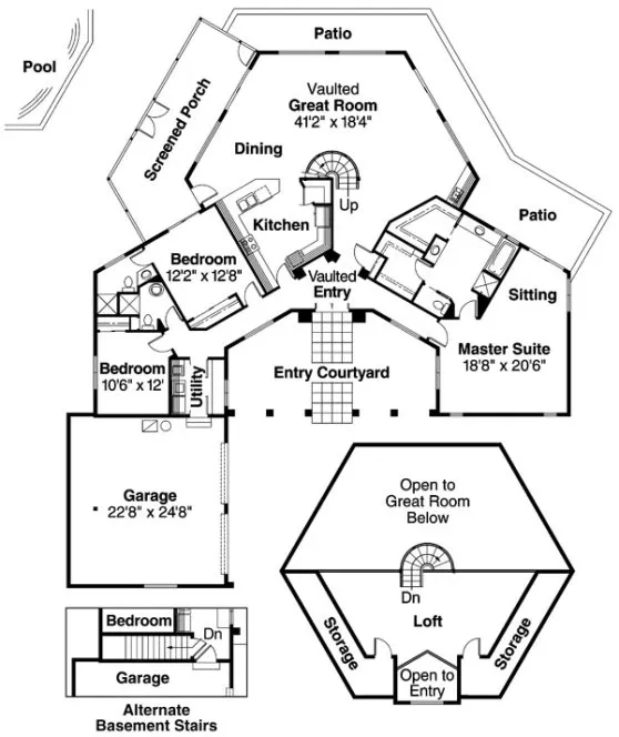
Well-windowed, vaulted hexagonal great room forms the core. A wide screened porch and long patio wrap around the entire rear. Columned and tiled entry courtyard leads into bright, vaulted entry
Specifications
Total 2773 sq ft
- Main: 2431
- Second: 342
- Third: 0
- Loft/Bonus: 0
- Basement: 0
- Garage: 611
Rooms
- Beds: 3
- Baths: 3
- 1/2 Bath: 0
- 3/4 Bath: 0
Ceiling Height
- Main: 12'0
- Second:
- Third:
- Loft/Bonus:
- Basement:
- Garage:
Details
- Exterior Walls: 2x6
- Garage Type: doubleGarage
- Width: 75'0
- Depth: 85'0
Roof
- Max Ridge Height: 23'0
- Comments: ()
- Primary Pitch: 6/12
- Secondary Pitch: 0/12
Add to Cart
Pricing
– westhomeplanners.com
First&Second Floor – westhomeplanners.com
– westhomeplanners.com
[Back to Search Results]

833–493–0942

