Plan No.418252
Eye-catching Exterior
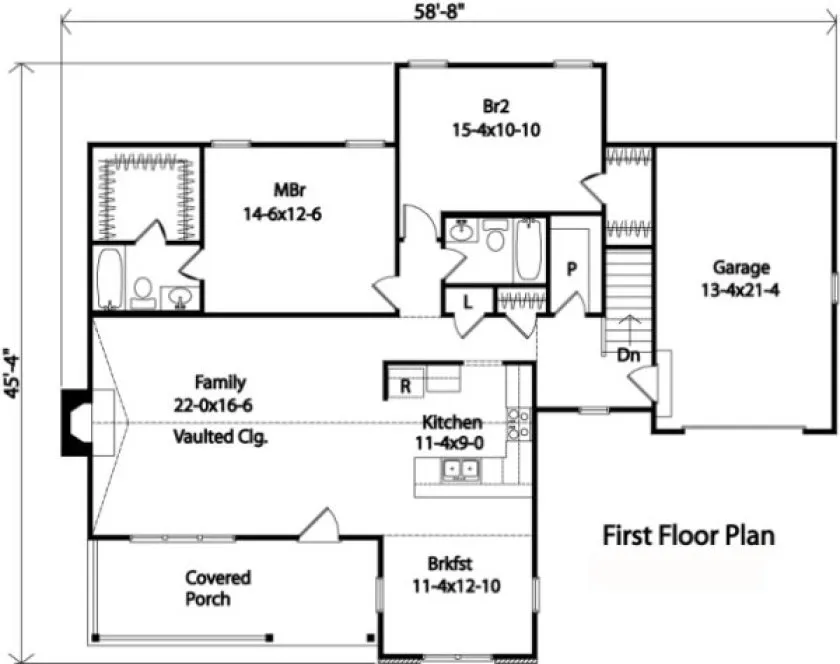
The front gables of this ranch house are eye-catching. Enter the vaulted family room from the welcoming covered front porch. An open floor plan provides a spacious look. Large windows brighten the breakfast room. The kitchen features a large walk-in pantry. Both bedrooms enjoy walk-in closets.
Specifications
Total 1416 sq ft
- Main: 1416
- Second: 0
- Third: 0
- Loft/Bonus: 0
- Basement: 1416
- Garage: 285
Rooms
- Beds: 2
- Baths: 2
- 1/2 Bath: 0
- 3/4 Bath: 0
Ceiling Height
- Main: 8'0
- Second:
- Third:
- Loft/Bonus:
- Basement: 8'0
- Garage: 9'4
Details
- Exterior Walls: 2x4
- Garage Type: singleGarage
- Width: 58'8
- Depth: 45'4
Roof
- Max Ridge Height: 20'4
- Comments: ()
- Primary Pitch: 8/12
- Secondary Pitch: 0/12
Add to Cart
Pricing
– westhomeplanners.com
– westhomeplanners.com
– westhomeplanners.com
– westhomeplanners.com
– westhomeplanners.com
[Back to Search Results]

833–493–0942



