Plan No.340241
Dramatic Vaulted Foyer
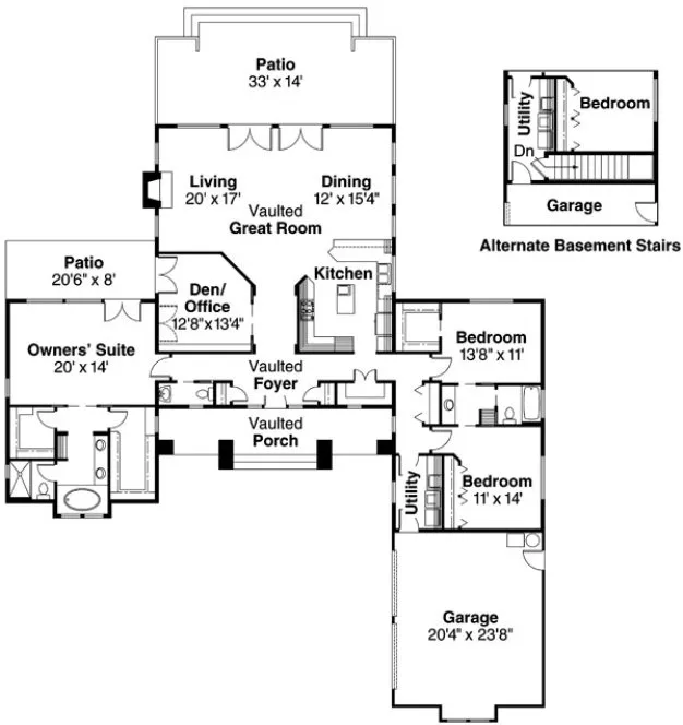
Handsome square columns highlight the lofty vaulted entry. Inside, light spills into the dramatic vaulted foyer through a bank of dormer windows high above. The apex of a vaulted ceiling runs down the middle of the gathering spaces, which are clustered together at the home�s core.
Specifications
Total 2556 sq ft
- Main: 2556
- Second: 0
- Third: 0
- Loft/Bonus: 0
- Basement: 0
- Garage: 520
Rooms
- Beds: 3
- Baths: 2
- 1/2 Bath: 1
- 3/4 Bath: 0
Ceiling Height
- Main: 9'0
- Second:
- Third:
- Loft/Bonus:
- Basement:
- Garage:
Details
- Exterior Walls: 2x6
- Garage Type: doubleGarage
- Width: 74'0
- Depth: 82'0
Roof
- Max Ridge Height: 24'0
- Comments: ()
- Primary Pitch: 6/12
- Secondary Pitch: 0/12
Add to Cart
Pricing
– westhomeplanners.com
Main&Second Floor – westhomeplanners.com
– westhomeplanners.com
[Back to Search Results]

833–493–0942

