Plan No.411342
Inviting Country Porch
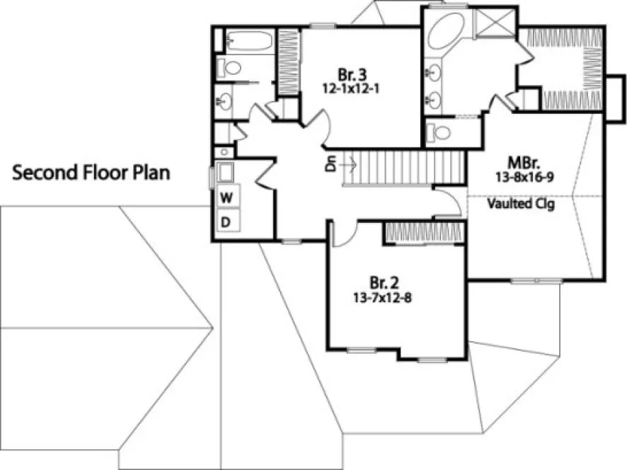
This country two-story offers an inviting covered front porch. The bayed breakfast room provides a planning desk while the kitchen offers an eating bar. The laundry room is conveniently located on the second floor near the bedrooms. The master bedroom boasts of vaulted ceilings, a luxury bath with corner whirlpool tub and an expansive walk-in closet.
Specifications
Total 2206 sq ft
- Main: 1086
- Second: 1120
- Third: 0
- Loft/Bonus: 0
- Basement: 1086
- Garage: 682
Rooms
- Beds: 3
- Baths: 2
- 1/2 Bath: 1
- 3/4 Bath: 0
Ceiling Height
- Main: 9'0
- Second: 8'0
- Third:
- Loft/Bonus:
- Basement: 8'0
- Garage: 10'4
Details
- Exterior Walls: 2x4
- Garage Type: tripleGarage
- Width: 62'0
- Depth: 45'8
Roof
- Max Ridge Height: 30'0
- Comments: ()
- Primary Pitch: 6/12
- Secondary Pitch: 8/12
Add to Cart
Pricing
– westhomeplanners.com
– westhomeplanners.com
– westhomeplanners.com
– westhomeplanners.com
– westhomeplanners.com
– westhomeplanners.com
[Back to Search Results]

833–493–0942




