Plan No.344041
Two-story Neocolonial Home
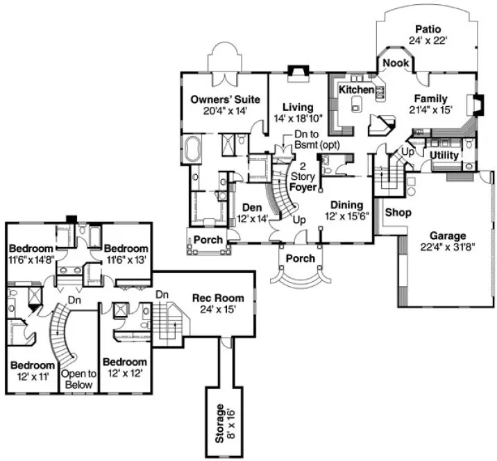
Two-story neocolonial home has side extensions and a roomy three-car garage. A dramatic curved stairway sweeps up the left side of its wide and lofty foyer to access the bedrooms, recreation room, and storage above. Its spacious kitchen, boasting a work island and large pantry, opens into the nook and family room.
Specifications
Total 4076 sq ft
- Main: 2508
- Second: 1568
- Third: 0
- Loft/Bonus: 0
- Basement: 0
- Garage: 776
Rooms
- Beds: 5
- Baths: 4
- 1/2 Bath: 2
- 3/4 Bath: 0
Ceiling Height
- Main: 9'0
- Second:
- Third:
- Loft/Bonus:
- Basement:
- Garage:
Details
- Exterior Walls: 2x6
- Garage Type: tripleGarage
- Width: 74'6
- Depth: 62'0
Roof
- Max Ridge Height: 31'6
- Comments: ()
- Primary Pitch: 7/12
- Secondary Pitch: 0/12
Add to Cart
Pricing
– westhomeplanners.com
First&Second Floor – westhomeplanners.com
– westhomeplanners.com
[Back to Search Results]

833–493–0942

