Plan No.342531
Second Floor Bridge
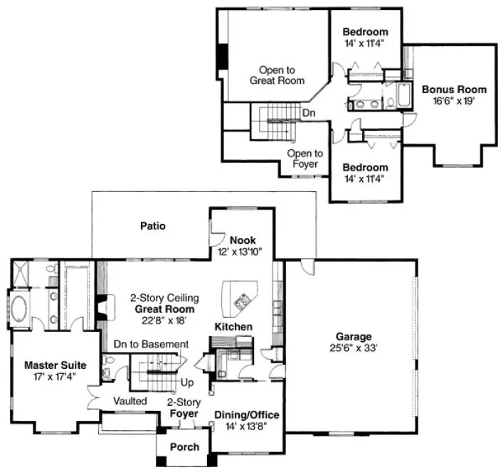
Stairway and second floor bridge open to two-story great room, foyer. Large room by entry could be used as dining room or home office. Spacious kitchen has nook, island, open to great room with fireplace
Specifications
Total 2571 sq ft
- Main: 1959
- Second: 612
- Third: 0
- Loft/Bonus: 0
- Basement: 0
- Garage: 888
Rooms
- Beds: 3
- Baths: 2
- 1/2 Bath: 1
- 3/4 Bath: 0
Ceiling Height
- Main: 9'0
- Second:
- Third:
- Loft/Bonus:
- Basement:
- Garage:
Details
- Exterior Walls: 2x6
- Garage Type: tripleGarage
- Width: 80'8
- Depth: 48'0
Roof
- Max Ridge Height: 28'0
- Comments: ()
- Primary Pitch: 8/12
- Secondary Pitch: 0/12
Add to Cart
Pricing
– westhomeplanners.com
First&Second Floor – westhomeplanners.com
– westhomeplanners.com
[Back to Search Results]

833–493–0942

