Plan No.341531
Spacious Loft
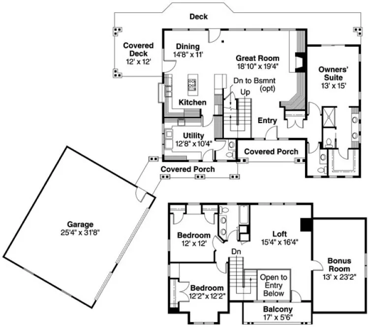
Stone masonry, shingles and windows create visual appeal. A spacious loft with front balcony, open to entry and large bonus room. Great room with fireplace joined to kitchen, dining room, deck
Specifications
Total 2428 sq ft
- Main: 1584
- Second: 844
- Third: 0
- Loft/Bonus: 0
- Basement: 0
- Garage: 841
Rooms
- Beds: 3
- Baths: 2
- 1/2 Bath: 2
- 3/4 Bath: 0
Ceiling Height
- Main: 10'0
- Second:
- Third:
- Loft/Bonus:
- Basement:
- Garage:
Details
- Exterior Walls: 2x6
- Garage Type: tripleGarage
- Width: 90'0
- Depth: 70'0
Roof
- Max Ridge Height: 27'4
- Comments: ()
- Primary Pitch: 10/12
- Secondary Pitch: 0/12
Add to Cart
Pricing
– westhomeplanners.com
– westhomeplanners.com
– westhomeplanners.com
[Back to Search Results]

833–493–0942

