Plan No.341031
Lofty gables
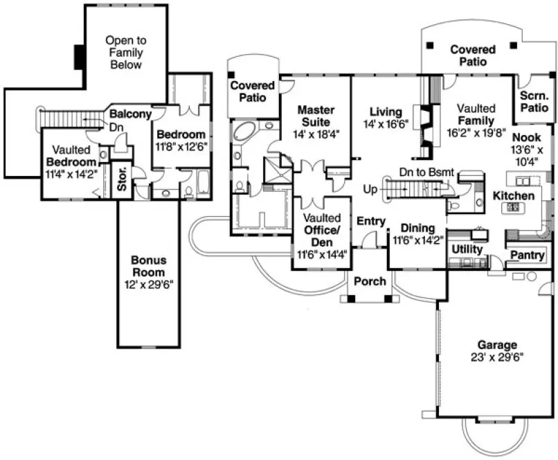
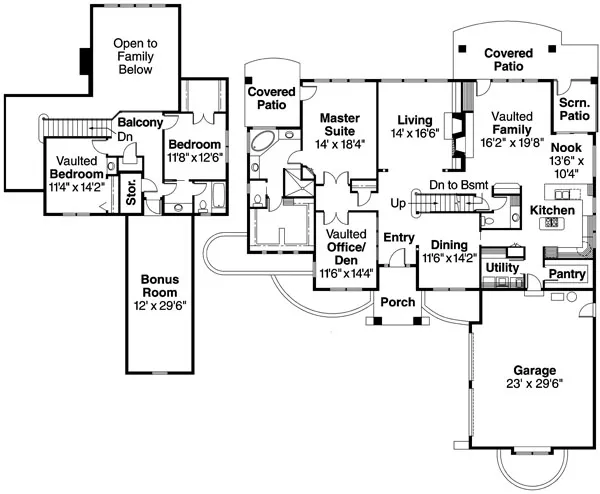
Lofty gables and custom brick detailing highlight this large, naturally bright home. Fireplaces serve as warm inviting focal points in both family room and living room Luxury master suite has double walk-in, posh bathroom, covered patio.
Specifications
Total 2998 sq ft
- Main: 2351
- Second: 647
- Third: 0
- Loft/Bonus: 0
- Basement: 0
- Garage: 716
Rooms
- Beds: 3
- Baths: 2
- 1/2 Bath: 1
- 3/4 Bath: 0
Ceiling Height
- Main: 9'0
- Second:
- Third:
- Loft/Bonus:
- Basement:
- Garage:
Details
- Exterior Walls: 2x6
- Garage Type: doubleGarage
- Width: 66'0
- Depth: 77'0
Roof
- Max Ridge Height: 28'4
- Comments: ()
- Primary Pitch: 8/12
- Secondary Pitch: 0/12
Add to Cart
Pricing
– westhomeplanners.com
Main&Second Floor – westhomeplanners.com
– westhomeplanners.com
[Back to Search Results]

833–493–0942

