Plan No.413122
Inviting Entrance
This traditional 1 1/2 storey home offers an inviting covered front porch and formal entrance. The foyer leads to a two-story great room, accented with a fireplace and plenty of windows. Coffered ceilings, a deluxe bath and double walk-in closets are featured in the master bedroom. A screened porch offers a relaxing outdoor retreat.
Specifications
Total 2150 sq ft
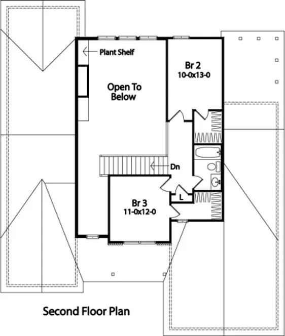
- Main: 1651
- Second: 499
- Third: 0
- Loft/Bonus: 0
- Basement: 1651
- Garage: 590
Rooms
- Beds: 3
- Baths: 2
- 1/2 Bath: 1
- 3/4 Bath: 0
Ceiling Height
- Main: 9'0
- Second: 8'0
- Third:
- Loft/Bonus:
- Basement: 8'0
- Garage: 10'4
Details
- Exterior Walls: 2x4
- Garage Type: tripleGarage
- Width: 50'8
- Depth: 60'0
Roof
- Max Ridge Height: 30'0
- Comments: ()
- Primary Pitch: 7/12
- Secondary Pitch: 10/12
Add to Cart
Pricing
– westhomeplanners.com
– westhomeplanners.com
– westhomeplanners.com
– westhomeplanners.com
– westhomeplanners.com
– westhomeplanners.com
[Back to Search Results]

833–493–0942




