Plan No.348521
Panoramic Views
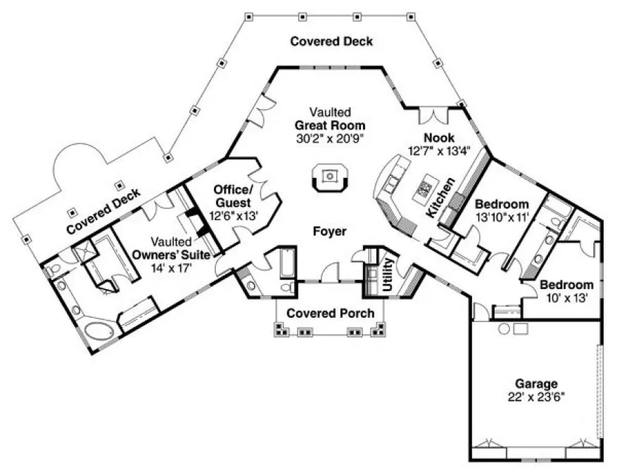
Panoramic views are available from almost every room of this hexagonal great room with bedroom wings. A woodstove serves as a warm and attractive focal point in the vaulted great room. The mostly covered, multi-access deck sweeps across the rear, adding a wealth of outdoor living space.
Specifications
Total 2568 sq ft
- Main: 2568
- Second: 0
- Third: 0
- Loft/Bonus: 0
- Basement: 0
- Garage: 552
Rooms
- Beds: 3
- Baths: 3
- 1/2 Bath: 0
- 3/4 Bath: 0
Ceiling Height
- Main: 8'0
- Second:
- Third:
- Loft/Bonus:
- Basement:
- Garage:
Details
- Exterior Walls: 2x6
- Garage Type: doubleGarage
- Width: 99'0
- Depth: 76'5
Roof
- Max Ridge Height: 22'10
- Comments: ()
- Primary Pitch: 8/12
- Secondary Pitch: 0/12
Add to Cart
Pricing
– westhomeplanners.com
– westhomeplanners.com
– westhomeplanners.com
– westhomeplanners.com
FRONT Elevation – westhomeplanners.com
[Back to Search Results]

833–493–0942



