Plan No.343221
Spacious Vaulted Great
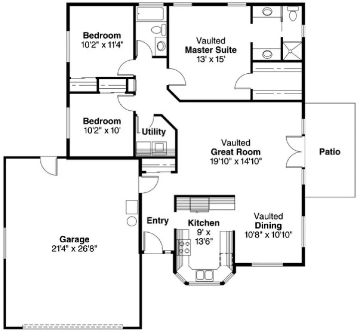
Spacious vaulted great room/dining room wraps around kitchen. Central located utility room is close to kitchen and bedrooms. Master suite has twin lavs, walk-in, enclosed water closet and shower
Specifications
Total 1415 sq ft
- Main: 1415
- Second: 0
- Third: 0
- Loft/Bonus: 0
- Basement: 0
- Garage: 591
Rooms
- Beds: 3
- Baths: 2
- 1/2 Bath: 0
- 3/4 Bath: 0
Ceiling Height
- Main: 8'0
- Second:
- Third:
- Loft/Bonus:
- Basement:
- Garage:
Details
- Exterior Walls: 2x6
- Garage Type: doubleGarage
- Width: 48'0
- Depth: 52'0
Roof
- Max Ridge Height: 19'4
- Comments: ()
- Primary Pitch: 6/12
- Secondary Pitch: 0/12
Add to Cart
Pricing
– westhomeplanners.com
– westhomeplanners.com
– westhomeplanners.com
[Back to Search Results]

833–493–0942

