Plan No.348811
Tandem fireplaces
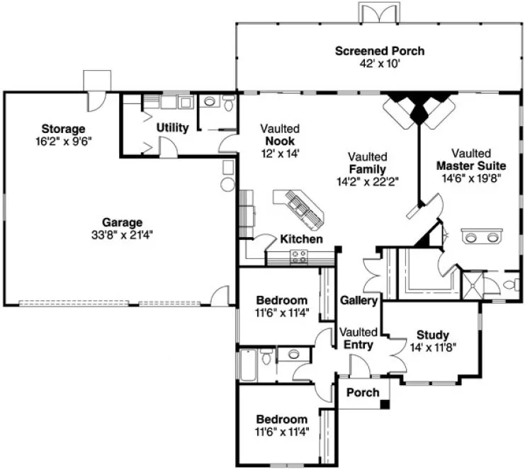
Tandem fireplaces bring warmth to vaulted family room, master?s suite. Gallery walls display art or family photos in the vaulted entry. Vaulted master suite has large walk-in closet, bright sitting area
Specifications
Total 2069 sq ft
- Main: 2069
- Second: 0
- Third: 0
- Loft/Bonus: 0
- Basement: 0
- Garage: 904
Rooms
- Beds: 3
- Baths: 2
- 1/2 Bath: 1
- 3/4 Bath: 0
Ceiling Height
- Main: 9'0
- Second:
- Third:
- Loft/Bonus:
- Basement:
- Garage:
Details
- Exterior Walls: 2x6
- Garage Type: tripleGarage
- Width: 76'0
- Depth: 65'0
Roof
- Max Ridge Height: 20'10
- Comments: ()
- Primary Pitch: 6/12
- Secondary Pitch: 0/12
Add to Cart
Pricing
– westhomeplanners.com
– westhomeplanners.com
– westhomeplanners.com
[Back to Search Results]

833–493–0942

