Plan No.217602
Flex Space
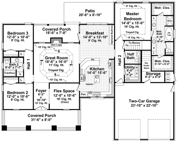
This striking craftsman farmhouse blends rustic charm with modern convenience, offering a layout perfect for families and entertaining. The inviting front porch opens into a foyer that leads to a spacious Great Room with soaring 11-foot trayed ceilings and a cozy gas-log fireplace. The open kitchen features a large island, walk-in pantry, and a breakfast area that flows seamlessly onto the rear patio and covered porch—ideal for outdoor dining. The private Master Suite includes dual walk-in closets and a spa-inspired bath with soaking tub, walk-in shower, and double vanities.
Specifications
Total 2067 sq ft
- Main: 2067
- Second: 0
- Third: 0
- Loft/Bonus: 379
- Basement: 0
- Garage: 699
Rooms
- Beds: 3
- Baths: 2
- 1/2 Bath: 1
- 3/4 Bath: 0
Ceiling Height
- Main: 9'0-11'0
- Second:
- Third:
- Loft/Bonus:
- Basement:
- Garage:
Details
- Exterior Walls: 2x4
- Garage Type: 2 Car Garage
- Width: 70'0
- Depth: 56'0
Roof
- Max Ridge Height: 24'3
- Comments: (Main Floor to Peak)
- Primary Pitch: 8/12
- Secondary Pitch: 0/12
Add to Cart
Pricing
– westhomeplanners.com
– westhomeplanners.com
– westhomeplanners.com
Fall Rendering – westhomeplanners.com
– westhomeplanners.com
[Back to Search Results]

833–493–0942



