Plan No.237021
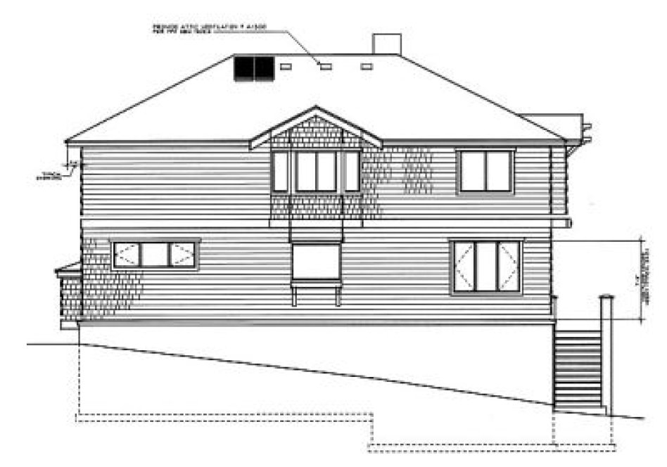
Multi-Story Craftsman
With a ground level entrance through the garage, this home features a bonus area of 410 sq. ft. with kitchenette, bathroom and laundry that could be used as an in-law suite. Stairs lead up to the main living area where a large deck wraps around the sunken family room. Above the main living area are an additional four bedrooms with a second and more spacious laundry.
Specifications
Total 2781 sq ft
- Main: 1370
- Second: 1411
- Third: 0
- Loft/Bonus: 410
- Basement: 850
- Garage: 808
Rooms
- Beds: 4
- Baths: 2
- 1/2 Bath: 1
- 3/4 Bath: 0
Ceiling Height
- Main: 9'0
- Second: 8'0
- Third:
- Loft/Bonus:
- Basement:
- Garage:
Details
- Exterior Walls: 2x4
- Garage Type: tripleGarage
- Width: 52'0
- Depth: 40'0
Roof
- Max Ridge Height: 37'9
- Comments: (Main Floor to Peak)
- Primary Pitch: 6/12
- Secondary Pitch: 0/12
Add to Cart
Pricing
– westhomeplanners.com
– westhomeplanners.com
– westhomeplanners.com
– westhomeplanners.com
– westhomeplanners.com
[Back to Search Results]

833–493–0942



