Plan No.349701
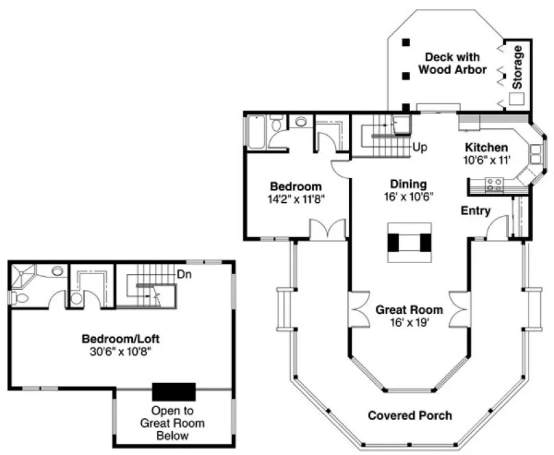
Richly Windowed Great Room
Panoramic views are visible from both the richly windowed great room and the wide covered porch that wraps around most of the room�s exterior. The two-sided fireplace can be enjoyed from the great room as well as a dining room that�s open to a bayed kitchen. Upstairs, a bedroom/loft is open to the great room below.
Specifications
Total 1575 sq ft
- Main: 1066
- Second: 509
- Third: 0
- Loft/Bonus: 0
- Basement: 0
- Garage: 0
Rooms
- Beds: 2
- Baths: 1
- 1/2 Bath: 0
- 3/4 Bath: 1
Ceiling Height
- Main: 8'0
- Second: 8'0
- Third:
- Loft/Bonus:
- Basement:
- Garage:
Details
- Exterior Walls: 2x6
- Garage Type:
- Width: 42'0
- Depth: 46'6
Roof
- Max Ridge Height: 24'4
- Comments: ()
- Primary Pitch: 6/12
- Secondary Pitch: 0/12
Add to Cart
Pricing
– westhomeplanners.com
Main & Second Floor – westhomeplanners.com
– westhomeplanners.com
[Back to Search Results]

833–493–0942

