Plan No.420534
Specifications
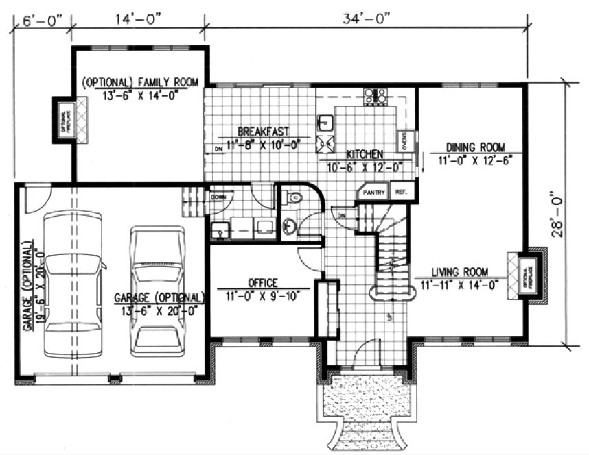
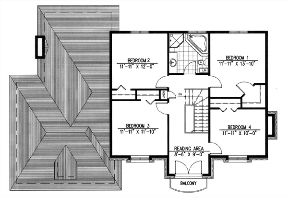
Total 2093 sq ft
- Main: 1093
- Second: 1000
- Third: 0
- Loft/Bonus: 0
- Basement: 984
- Garage: 390
Rooms
- Beds: 4
- Baths: 1
- 1/2 Bath: 1
- 3/4 Bath: 0
Ceiling Height
- Main: 8'0
- Second: 8'0
- Third:
- Loft/Bonus:
- Basement: 8'0
- Garage: 9'4
Details
- Exterior Walls: 2x6
- Garage Type: doubleGarage
- Width: 54'0
- Depth: 28'0
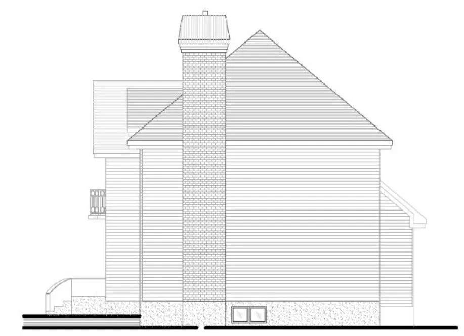
Roof
- Max Ridge Height: 31'7
- Comments: ()
- Primary Pitch: 10/12
- Secondary Pitch: 14/12
Add to Cart
Pricing
– westhomeplanners.com
– westhomeplanners.com
– westhomeplanners.com
– westhomeplanners.com
– westhomeplanners.com
– westhomeplanners.com
[Back to Search Results]

833–493–0942




