Plan No.200244
A Wrap Around Sundeck
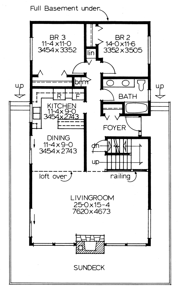
Here is an addition to our ever-popular collection of A-frames. Slightly larger than most...this design will make either a vacation home or an ideal permanent dwelling. A wrap-around sundeck, stone fireplace, shakes and cedar siding present a pleasing exterior appearance. Indoors, the high-vaulted ceiling of the livingroom, open central staircase, beautiful dressing room and bath combination off the master suite and large rooms make this a most desirable plan. See our garage plan collection. If you order a house and garage plan at the same time, you will get 10% off your total order amount.
Specifications
Total 1702 sq ft
- Main: 1238
- Second: 0
- Third: 0
- Loft/Bonus: 464
- Basement: 1248
- Garage: 0
Rooms
- Beds: 3
- Baths: 2
- 1/2 Bath: 0
- 3/4 Bath: 0
Ceiling Height
- Main: 8'0+
- Second:
- Third:
- Loft/Bonus: 7'6
- Basement: 8'0
- Garage:
Details
- Exterior Walls: 2x6
- Garage Type:
- Width: 26
- Depth: 48
Roof
- Max Ridge Height: 24'8
- Comments: (Main Floor to Peak)
- Primary Pitch: 13.5/12
- Secondary Pitch: 0/12
Add to Cart
Pricing
– westhomeplanners.com
– westhomeplanners.com
– westhomeplanners.com
– westhomeplanners.com
[Back to Search Results]

833–493–0942


