Plan No.420914
Specifications
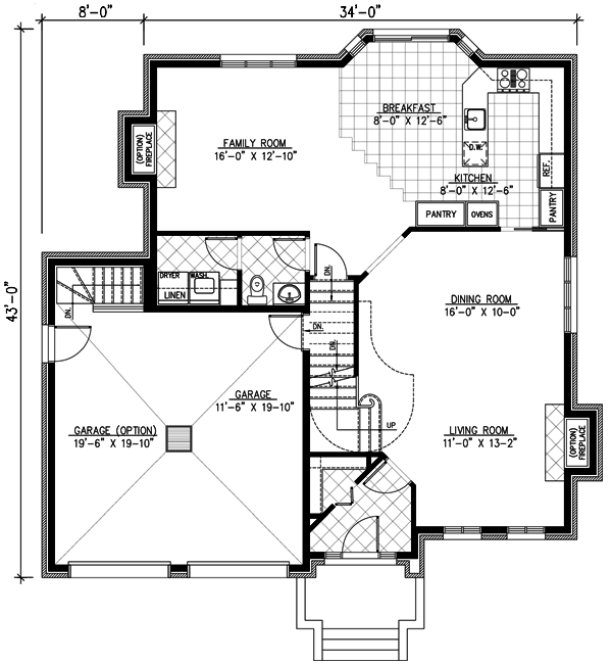
Total 2437 sq ft
- Main: 1107
- Second: 1330
- Third: 0
- Loft/Bonus: 0
- Basement: 1107
- Garage: 386
Rooms
- Beds: 4
- Baths: 2
- 1/2 Bath: 1
- 3/4 Bath: 0
Ceiling Height
- Main: 8'0
- Second: 8'0
- Third:
- Loft/Bonus:
- Basement: 8'0
- Garage: 9'4
Details
- Exterior Walls: 2x6
- Garage Type: doubleGarage
- Width: 42'0
- Depth: 43'0
Roof
- Max Ridge Height: 31'9
- Comments: ()
- Primary Pitch: 8/12
- Secondary Pitch: 12/12
Add to Cart
Pricing
– westhomeplanners.com
– westhomeplanners.com
– westhomeplanners.com
– westhomeplanners.com
– westhomeplanners.com
– westhomeplanners.com
[Back to Search Results]

833–493–0942




