Plan No.231121
Please note, the Bonus Room area is not included in the Total Square Footage.
Specifications
Total 3369 sq ft
- Main: 1680
- Second: 1689
- Third: 0
- Loft/Bonus: 229
- Basement: 0
- Garage: 694
Rooms
- Beds: 4
- Baths: 3
- 1/2 Bath: 0
- 3/4 Bath: 0
Ceiling Height
- Main: 9'0
- Second: 8'0
- Third:
- Loft/Bonus:
- Basement:
- Garage:
Details
- Exterior Walls: 2x4
- Garage Type: tripleGarage
- Width: 56'0
- Depth: 56'0
Roof
- Max Ridge Height: 31'8
- Comments: (Main Floor to Peak)
- Primary Pitch: 8/12
- Secondary Pitch: 0/12
Add to Cart
Pricing
– westhomeplanners.com
– westhomeplanners.com
– westhomeplanners.com
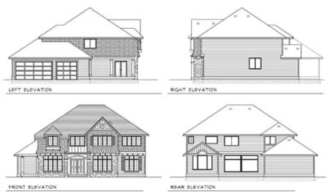
Elevations – westhomeplanners.com
[Back to Search Results]

833–493–0942


