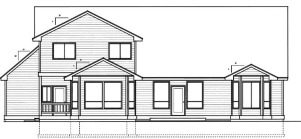
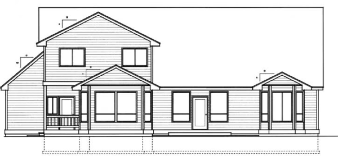
Plan No.232128
Design Comments: Great Room & Foyer ceilings vault to 22'-0". The Master Bedroom and Bathroom ceilings are 9’-0” The ensuite dormer centers over the soaker tub and is open to below. The tub and shower are both 5’-0” wide.
Specifications
Total 2652 sq ft
- Main: 1576
- Second: 1076
- Third: 0
- Loft/Bonus: 0
- Basement: 0
- Garage: 668
Rooms
- Beds: 4
- Baths: 2
- 1/2 Bath: 1
- 3/4 Bath: 0
Ceiling Height
- Main: 9'0
- Second: 8'0
- Third:
- Loft/Bonus:
- Basement:
- Garage:
Details
- Exterior Walls: 2x6
- Garage Type: tripleGarage
- Width: 63'8
- Depth: 54'0
Roof
- Max Ridge Height: 26'2
- Comments: (Main Floor to Peak)
- Primary Pitch: 10/12
- Secondary Pitch: 6/12
Add to Cart
Pricing
– westhomeplanners.com
– westhomeplanners.com
– westhomeplanners.com
– westhomeplanners.com
[Back to Search Results]

833–493–0942


