Plan No.233269
Call us for Additional Foundation Options:Basement Foundation:$250, Daylight Basement Foundation:$350,Slab:$150
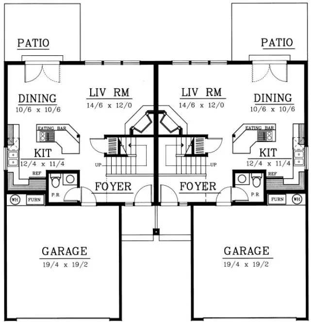
Specifications
Total 2796 sq ft
- Main: 623
- Second: 755
- Third: 0
- Loft/Bonus: 0
- Basement: 0
- Garage: 404
Rooms
- Beds: 3
- Baths: 2
- 1/2 Bath: 1
- 3/4 Bath: 0
Ceiling Height
- Main: 8'0
- Second: 8'0
- Third:
- Loft/Bonus:
- Basement:
- Garage:
Details
- Exterior Walls: 2x6
- Garage Type: doubleGarage
- Width: 52'0
- Depth: 44'0
Roof
- Max Ridge Height: 24'10
- Comments: ()
- Primary Pitch: 6/12
- Secondary Pitch: 8/12
Add to Cart
Pricing
– westhomeplanners.com
– westhomeplanners.com
– westhomeplanners.com
[Back to Search Results]

833–493–0942

