Plan No.236325
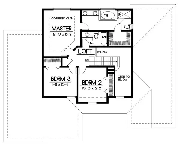
Design Comments: Living Room ceiling vaults to 10'-5", Bedroom #2 ceiling vaults to 9'-10".
Specifications
Total 2237 sq ft
- Main: 1398
- Second: 839
- Third: 0
- Loft/Bonus: 0
- Basement: 0
- Garage: 685
Rooms
- Beds: 3
- Baths: 2
- 1/2 Bath: 1
- 3/4 Bath: 0
Ceiling Height
- Main: 8'0
- Second: 8'0
- Third:
- Loft/Bonus:
- Basement:
- Garage:
Details
- Exterior Walls: 2x6
- Garage Type: tripleGarage
- Width: 57'0
- Depth: 45'0
Roof
- Max Ridge Height: 28'1
- Comments: (Main Floor to Peak)
- Primary Pitch: 8/12
- Secondary Pitch: 0/12
Add to Cart
Pricing
Full Rendering – westhomeplanners.com
MAIN Plan – westhomeplanners.com
SECOND Plan – westhomeplanners.com
Elevations – westhomeplanners.com
[Back to Search Results]

833–493–0942


