Plan No.234325
Specifications
Total 1647 sq ft
- Main: 848
- Second: 799
- Third: 0
- Loft/Bonus: 0
- Basement: 0
- Garage: 401
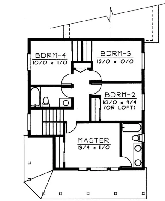
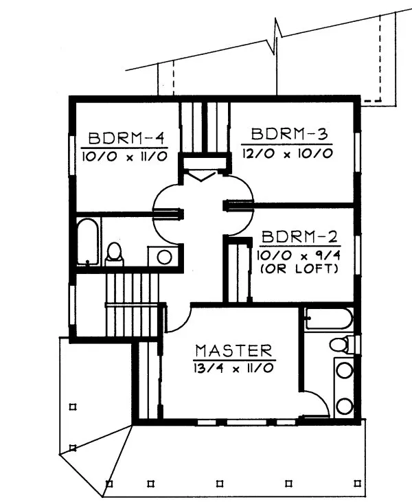
Rooms
- Beds: 4
- Baths: 2
- 1/2 Bath: 1
- 3/4 Bath: 0
Ceiling Height
- Main: 8'0
- Second: 8'0
- Third:
- Loft/Bonus:
- Basement:
- Garage:
Details
- Exterior Walls: 2x6
- Garage Type: doubleGarage
- Width: 30'0
- Depth: 52'0
Roof
- Max Ridge Height: 28'8
- Comments: ()
- Primary Pitch: 8/12
- Secondary Pitch: 0/12
Add to Cart
Pricing
– westhomeplanners.com
– westhomeplanners.com
– westhomeplanners.com
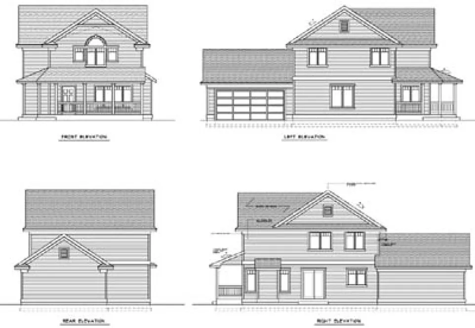
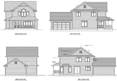
Elevations – westhomeplanners.com
[Back to Search Results]

833–493–0942


